Теремок - детские игры
Мультфильмы Прикольный досуг Лопотушки Детское творчество
               
 
 
На главную
 
 
Математика 1 класс
 

 

 

Математика 2 класс

 

Математика 3 класс
   
 
Математика 4 класс
 
 
Математика 5 класс
 
Математика 2 класс тетрадь
 
Математика 3 класс тетрадь
 
Математика 4 класс тетрадь
 
Карта сайта
 
 


 

 

Математика 5 класс

номер 578

578. Вычислите периметр и площадь фигуры, изображённой на рисунке 149 (размеры даны в сантиметрах).

а)


рисунок 149 математика 5 класс номер 578

1) 15 + 18 + 10 + 8 + 5 + 8 + 18 = 82 (см) — периметр всей фигуры.

2) 8 • 5 = 40 (см2) — площадь маленького прямоугольника.

3) 18 • 15 = 270 (см2) — площадь большого прямоугольника.

4) S = 40 + 270 = 310 (см2). — площадь фигуры.

Ответ: P = 82 см, S = 310 см2.

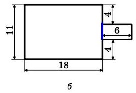
б)

578. Вычислите периметр и площадь фигуры, изображённой на рисунке 149 (размеры даны в сантиметрах).

1) 18 + 4 + 6 + 3 + 6 + 4 + 18 + 11 = 70 (см) — периметр всей фигуры.

2) 11 – (4 + 4) = 3 (см) — ширина маленького прямоугольника.

3) 6 • 3 = 18 (см2) — площадь маленького прямоугольника.

4) 18 • 11 = 198 (см2) — площадь большого прямоугольника.

5) S = 18 + 198 = 216 (см2).

Ответ: P = 70 см, S = 216 см2.

 

 

 

 

 

 

 

 

 

 

 

 

 

 

 
На главную Математика 1 класс Математика 2 класс Математика 3 класс Математика 4 класс